Chave rotativa programável, também conhecida como copiadora, dotada de blocos de contatos independentes com regulagens individuais repetidas a cada 360º de giro no eixo (a cada rotação), com elevada resistência eletromecânica especial para ambientes agressivos.
Chave rotativa programável, também conhecida como copiadora, dotada de blocos de contatos independentes com regulagens individuais repetidas a cada 360º de giro no eixo (a cada rotação), com elevada resistência eletromecânica especial para ambientes agressivos.
É uma chave indicada para automatizar e monitorar máquinas com baixa rotação, tais como; carros de transferência; portas de fornos, enroladores e desenroladores de cabos e bobinas de usos siderúrgicos, empilhadeiras e recuperadoras automáticas de uso em minerações e pátios de minérios, máquinas portuárias etc.

CARACTERÍSTICAS TÉCNICAS
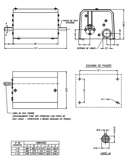
Pode ser fornecida com até 12 contatos elétricos, do tipo bloco de contato de ação lenta e dupla ruptura com pastilhas de prata óxido de cádmio (AgCdO), acionados por cames de aço sobre alavancas com roletes de poliamida, com capacidade especificada à seguir.

SENSOR INDUTIVO ( 2 FIOS ):
![]()
GRAU DE PROTEÇÃO
IP-54 (proteção contra pó e respingos de líquidos vindos de qualquer direção), conforme Norma ABNT NBR IEC 60529.
TEMPERATURA DE UTILIZAÇÃO
A faixa de rotações recomendada para este modelo de chave é de 60 rpm (mínimo) e de no máximo de 150 rpm.
OBS.:
Possui uma entrada de cabos lateral de f 45mm, provida de tampão de vedação.
PINTURA
A pintura das chaves será do tipo eletrostática á pó em poliéster, sendo disponíveis as seguintes cores padronizadas: Vermelho segurança (Munsell 5R 4/14), Amarelo segurança (Munsell 5Y 8/12) e Cinza Claro (Munsell N6,5), outras cores deverão ser consultadas.
O peso da chave LR-320 altera em função da quantidade de circuitos.
DADOS CONSTRUTIVOS
Chave padrão: Caixa e tampa em chapa de aço carbono, pintura externa em poliéster (eletrostática a pó) de alta resistência, eixos, cames e estrutura em aço carbono bicromatizados, roletes de acionamento dos contatos em poliamida, blocos de contato em baquelite com contatos de latão e pastilhas de prata óxido de cádmio (AgCdO).
A programação dos contatos são independentes, e podem ser efetuadas em dois locais, diretamente nos cames (regulagem básica) variando de 0º a 360º e na placa de ajuste fino, ajuste este que se faz externamente ao mecanismo, com o ajuste variando no máximo 20º.
TABELA PARA ESPECIFICAÇÃO
Para uma perfeita especificação do modelo desejado, os números entre colchetes, que correspondem aos itens da primeira coluna, deverão ser substituídos pelos códigos alfanuméricos, constantes na ultima coluna, ou pelos informados em tabelas anteriores
MODELO LR-320 / [ 1 ] [ 2 ] [ 3 ] [ 4 ] [ 5 ] [ 6 ] [ 7 ]

Avaliações
Ainda não há comentários.